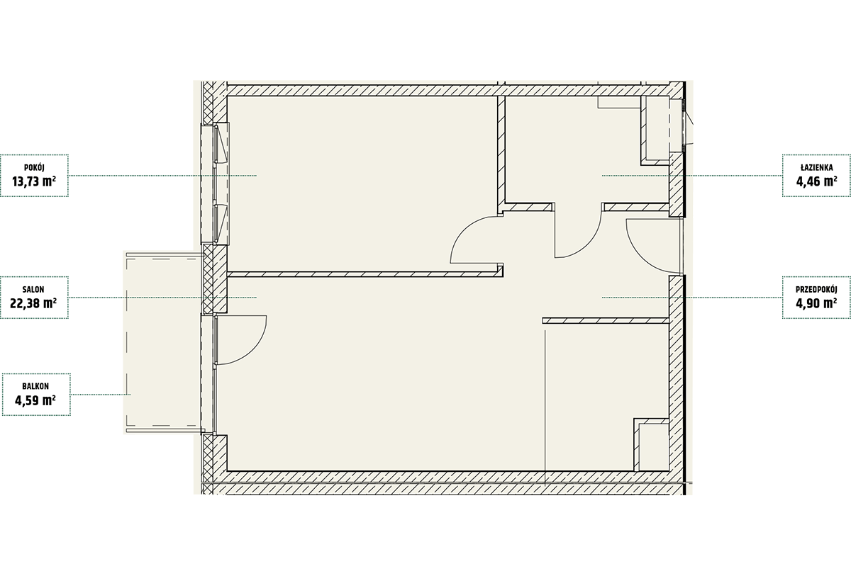
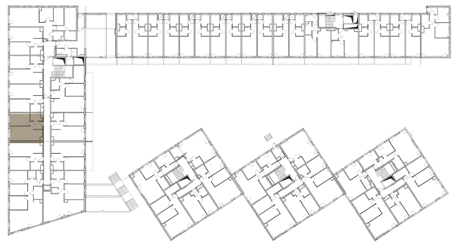
Mieszczańska 14 lokal 13 - Central Park Wrocław
Central Park
Central Park

    Skontaktujemy się z Tobą

    Powrót Mieszczańska 14 lokal 13

    Przyległości (nie są obligatoryjne):

    • Miejsca parkingowe: od 45 000 do 100 000 PLN brutto
    • Komórki lokatorskie 8 000 PLN / m² brutto

    Skontaktuj się z nami